



El diseño de la oficina para la empresa constructora "Martabid" se centra en la funcionalidad y la identidad de la empresa. Se propone una distribución que incluya áreas de trabajo abiertas, oficinas privadas, zonas de reuniones y una recepción profesional. Se destaca la importancia de reflejar la identidad de la marca mediante el uso de colores corporativos y la incorporación del logotipo en lugares estratégicos. Se sugiere mobiliario moderno y ergonómico, iluminación natural, elementos decorativos que reflejen la industria de la construcción y tecnología avanzada en las salas de reuniones. La flexibilidad del espacio y la atención a la sostenibilidad también son consideraciones clave.
Diseño AL

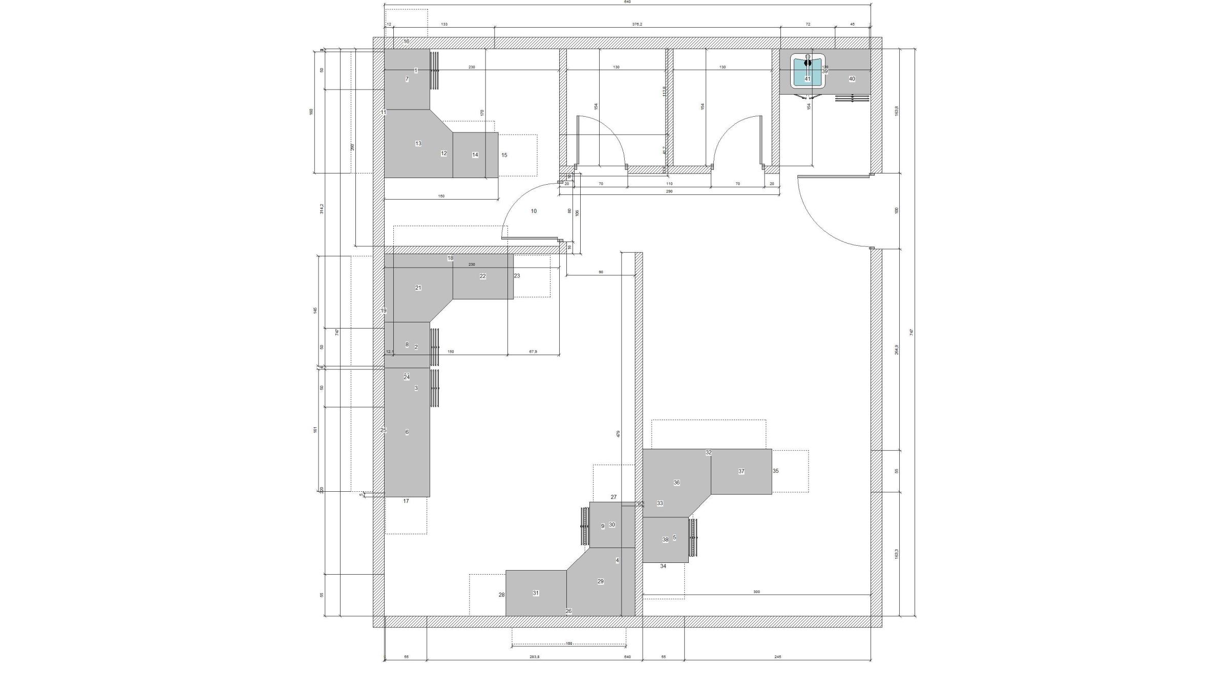
El diseño propuesto para la cocina de la casa en la hacienda "Santa Maria" en Labranza presenta una estética moderna y elegante. Se emplea melamina de color blanco semi brillo para los gabinetes, proporcionando un ambiente limpio y luminoso. La cubierta de granito añade durabilidad y sofisticación al espacio. La quincallería de alta calidad se elige con un diseño moderno, y la distribución funcional maximiza el almacenamiento. Se incorpora iluminación estratégica con LED integrado y electrodomésticos empotrados para mantener un aspecto uniforme. La estética minimalista se logra mediante elementos decorativos limpios, y la paleta de colores neutra contribuye a una atmósfera contemporánea y cohesionada. Este diseño busca fusionar la funcionalidad moderna con la elegancia atemporal en la cocina de la hacienda.
Diseño AL

Diseño de espacios interiores realizados por especialistas con materiales de alta calidad y terminaciones en sus materialidades gran estándar, sello de calidad Artelillo.cl
Diseño AL


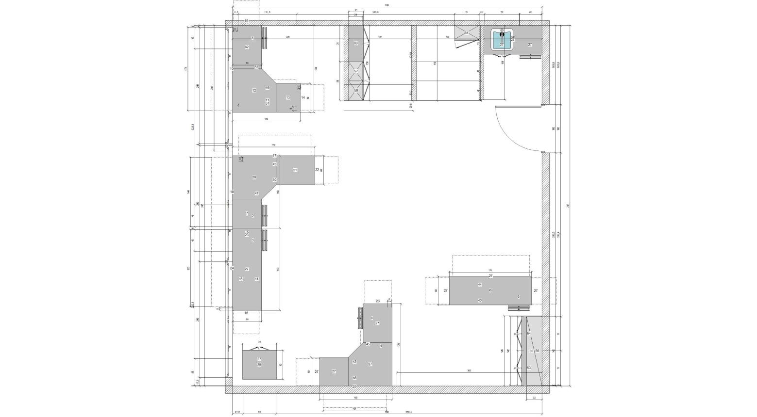
El diseño propuesto para la cocina en el departamento de Temuco destaca por su elegancia y calidad. Se utiliza una cubierta de granito de alta calidad para agregar durabilidad y sofisticación. Los revestimientos de laminas con diseño de madera cerezo aportan calidez y un toque clásico al ambiente. La quincallería de la marca Ducasse, conocida por su calidad y diseño refinado, se integra para agregar detalles de lujo. La distribución funcional optimiza el espacio para una eficiencia máxima, mientras que la iluminación estratégica resalta los elementos clave del diseño. Electrodomésticos modernos y una paleta de colores coordinada contribuyen a crear una cocina funcional y elegante en este departamento en Temuco.
Diseño AL
El diseño de la cocina en el departamento, creado por Artelillo.cl, se destaca por su enfoque contemporáneo y uso audaz del color. La elección de gabinetes blancos laminados proporciona un fondo luminoso, mientras que la cubierta en color turquesa agrega vitalidad y energía al espacio. Se incorpora un toque de color menta texturado para contrastar y añadir dimensión táctil. La distribución funcional asegura una experiencia de cocina eficiente, y la iluminación estratégica resalta elementos clave del diseño. Electrodomésticos modernos se integran de manera armoniosa, y los tonos neutros en pisos y paredes equilibran la paleta de colores. Los detalles de diseño exclusivos de Artelillo.cl agregan una identidad única a este espacio contemporáneo y vibrante.
Diseño AL
El proyecto en el sector de Batuco, Santiago, liderado por Artelillo.cl, busca transformar tanto los espacios interiores como exteriores de una vivienda. El diseño integral incluirá cocinas modernas, comedores elegantes y dormitorios personalizados. Con el estilo distintivo y la dedicación característica de Artelillo.cl, se crearán zonas exclusivas que reflejen la individualidad de cada espacio. Además, se aprovechará el entorno natural para integrar la vivienda con la naturaleza circundante. Este proyecto promete una ejecución de alta calidad y un diseño único que cumplirá con las expectativas y gustos del cliente.
Diseño AL

Diseño AL

Diseño AL